Call us: (360) 446-4646
1-877-446-4647

9746 B Holman Road NW in Seattle

Listing ID:2448356 (Condominium)
Listing Price:$699,900
Days on Market:3

Details

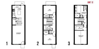
Bed / Bath:3.00 / 1.75
Lot Size:0.01 acre (550 sqft)

Intro Interest Rate as low as 1.875%! Shelter Homes' 30 YR FIXED or 7/6 ARM jumpstarted w/ a 3-2-1 Buy Down! Call for details! Discover Elm-nestled in the heart of Greenwood. This stunning 3-bedroom home spans over 1,500 sq ft & features bright, open-concept living, dining spaces, a private fenced patio, a chef-inspired kitchen w/ stainless steel appl., & separated guest quarters. The expansive top-floor primary suite offers a luxurious 4-piece spa-like bath & private South-facing balcony. Live steps from QFC, Met Market, top-rated dining, cozy cafés, Soundview Playfield, & Carkeek Park. Enjoy quick access to I-5, Hwy 99, & transit options. Modern elegance, comfort, convenience, and your perfect new home await at Elm.


NWMLS

This listing is provided courtesy of NWMLS, contributed by Windermere RE/Capitol Hill,Inc.



Property Details

Home

Style:32 - Townhouse
Bedrooms:3.00
Bathrooms:1.75
Year Built:2025

Schools

School District:Seattle
Elementary School:Viewlands
Junior High:Whitman Mid
Senior High:Ingraham High

Surroundings

View:Territorial

Financials

Tax Year:2025
Parcel Number:TBD9746B

Similar Nearby Propertys

YouTube Facebook LinedIn