Call us: (360) 446-4646
1-877-446-4647

9725 6th Avenue NW in Seattle

Listing ID:2436041 (Condominium)
Listing Price:$769,900
Days on Market:92

Details

Bed / Bath:3.00 / 1.75
Lot Size:0.02 acre (708 sqft)

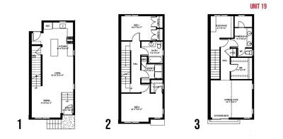
Rates as low as 2.875%* Welcome to Elm built by Shelter Homes. This standout 3-bed PLUS office home has a private EV-capable parking spot right outside the back door. Modern, warm, and spacious, the entry-level centers on an expansive living room, bookended by a large kitchen w/ a generous island counter and separate dining space. The 2nd level offers 2 large bedrooms, a laundry room, & full bath. The third level is the primary suite w/ vaulted ceilings, spa bath w/ floor-to-ceiling windows, & an office/den. Enjoy efficient ductless mini-split systems for heating & cooling, luxury finishes throughout, & a fantastic location! Live moments from QFC, Met Market, top-rated dining, cozy cafés, Soundview Playfield, & Carkeek Park. *Terms Apply.


NWMLS

This listing is provided courtesy of NWMLS, contributed by Windermere RE/Capitol Hill,Inc.



Property Details

Home

Style:32 - Townhouse
Bedrooms:3.00
Bathrooms:1.75
Year Built:2025

Schools

School District:Seattle
Elementary School:Viewlands
Junior High:Whitman Mid
Senior High:Ingraham High

Surroundings

View:Territorial

Financials

Tax Year:2025
Parcel Number:TBD9725

Similar Nearby Propertys

YouTube Facebook LinedIn