Call us: (360) 446-4646
1-877-446-4647

838 S Sprague Avenue in Tacoma

Listing ID:2509028 (Residential Home)
Listing Price:$415,000
Days on Market:2

Details

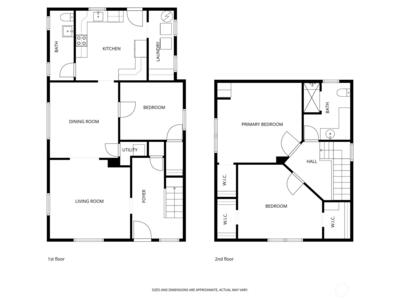
Bed / Bath:3.00 / 1.25
Square Feet:1,626
Lot Size:0.10 acres (4,387 sqft)

Set in Tacoma’s 6th Ave district, this 3-bedroom home puts you just blocks from restaurants, parks, and neighborhood favorites, with quick access to Highway 16 when you need to get across town. With more than 1,600 square feet, the home has a bright, airy feel thanks to tall ceilings on both floors and large windows throughout. The bedrooms are generously sized, with proportions that feel right from room to room. Original hardwoods run through most of the home, adding warmth and character. A main-level half bath and full laundry room add to the home’s functionality. The kitchen was remodeled in 2026 with 3cm quartz countertops that extend as the backsplash, along with soft-close cabinets and drawers for a clean, finished look. The home also features a new roof and fresh interior and exterior paint, completed in 2026. Plumbing and electrical have also been updated. Outside, the property is nearly fully fenced and offers a covered front porch, rear deck, and dedicated off-street park


NWMLS

This listing is provided courtesy of NWMLS, contributed by Properties NW of Gig Harbor.



Home Details

Home

Style:12 - 2 Story
Bedrooms:3.00
Bathrooms:1.25
Year Built:2002
Square Footage:1,626
Lot Square Footage:0.10 acres

Schools

School District:Tacoma
Elementary School:Buyer To Verify
Junior High:Hilltop Heritage Middle
Senior High:Foss

Surroundings

View:Territorial

Financials

Tax Year:2025
Parcel Number:2700000060

Similar Nearby Homes

YouTube Facebook LinedIn