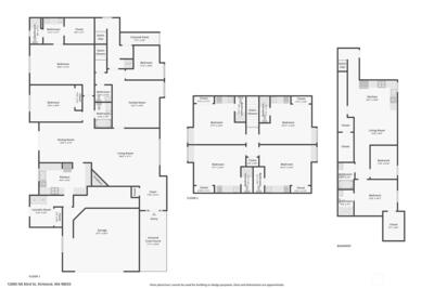
Unprecedented cash flow potential in the heart of Kirkland's booming Rose Hill! Located on a cul-de-sac, this solidly built custom property offers an incredibly versatile layout. The expansive floorplan features a bright 2140 sqft main floor with 2-bed+bonus room; four independent 250 sqft ensuite studios upstairs; and a 900 sqft 2-bed basement apartment ADU built new in 2021. This is the ultimate 'house-hack' - live comfortably on the large main floor while the upper and lower units subsidize your mortgage, use it for multi-generational living, or maximize cash flow as a fully rented investment. In addition to the 2-car lofted garage, 5 additional off-street parking spots can easily accommodate multiple occupants. Seller is a licensed real estate broker in Washington. Photos have been virtually staged. Features recently updated hard flooring, custom solid wood kitchen cabinets with sliding drawer pantry in the main, walk-in primary closets, and ample storage throughout the house. Perf
This listing is provided courtesy of NWMLS, contributed by WeLakeside.