Call us: (360) 446-4646
1-877-446-4647

9225 B Densmore Avenue N in Seattle

Listing ID:2508318 (Residential Home)
Listing Price:$499,900
Days on Market:1

Details

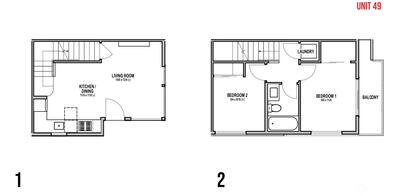
Bed / Bath:2.00 / 1.00
Square Feet:685
Lot Size:0.02 acres (865 sqft)

Thoughtfully designed as an alternative to traditional condo living, this two-bedroom residence balances modern efficiency with the freedom of real outdoor space. The entry level unfolds into an inviting open-concept living and dining area—bright, comfortable, and perfectly scaled for everyday life or casual entertaining. The kitchen anchors the space with premium appliances, clean-lined cabinetry, and smart storage that keeps everything within reach without clutter. From here, a standout feature waits just outside in the form of a covered patio and expansive garden space. Upstairs, the home continues to impress with well-proportioned bedrooms, including a rear bedroom with its own private balcony—an ideal retreat for fresh air, reading, or a quiet reset at the end of the day. Mini-split heating and cooling, an integrated ERV air filtration system, and energy-conscious construction support healthier, more efficient living year-round. Set in the heart of Licton Springs, you’re mom


NWMLS

This listing is provided courtesy of NWMLS, contributed by Windermere RE/Capitol Hill,Inc.



Home Details

Home

Style:32 - Townhouse
Bedrooms:2.00
Bathrooms:1.00
Year Built:2026
Square Footage:685
Lot Square Footage:0.02 acres

Schools

School District:Seattle
Elementary School:Viewlands
Junior High:Robert Eagle Staff Middle School
Senior High:Ingraham High

Surroundings

View:Territorial

Financials

Tax Year:2026
Parcel Number:6178000130

Similar Nearby Homes

YouTube Facebook LinedIn