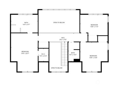
Stunning Lindal Cedar home on nearly 10 acres! The craftsman-style details, tongue-&-groove cedar ceilings, hardwood floors, wood-wrapped windows, & solid wood doors of this gorgeous home are sure to impress; the 20ft vaulted living room w exposed beams, catwalk above, and wall of windows will take your breath away! Fulfill your kitchen dreams with 5-burner Wolf stove, newer stainless appliances, farm sink, beautiful cabinetry, & expansive granite island w hammered copper prep sink. Main floor primary delights w enticing sunroom, spa-appointed bath featuring walk-in shower w multiple heads, jacuzzi tub, & cedar ceiling, and walk-in closet w built-ins. Upstairs maintains the exposed beam/vaulted experience, overlooking living room & outdoor views, while boasting a 2nd primary w walk-in closet, glass-door shower, & soaking tub, plus 2 more bedrooms & additional full bath--providing multiple options for generational living, work from home office, or generous guest space. For the utmost in
This listing is provided courtesy of NWMLS, contributed by RE/MAX Northwest Realtors.