Call us: (360) 446-4646
1-877-446-4647

15215 SE 179th St in Renton

Listing ID:2507056 (Residential Home)
Listing Price:$695,000
Days on Market:2

Details

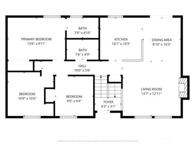
Bed / Bath:3.00 / 2.50
Square Feet:1,530
Lot Size:0.28 acres (12,147 sqft)

Situated on almost 1/3 acre, this is a must-see split-level home that blends thoughtful upgrades & flexibility. Offering 3 bedrooms, 2.5 bathrooms, all with a tub or shower, plus a fully updated lower-level rec space with a brand new ¾ bath, this layout lives larger than expected. The downstairs area is ideal for a potential 4th bedroom, guest suite, or second primary, giving you versatility to fit your lifestyle. The kitchen has been beautifully updated featuring a gas stove, stainless steel appliances, and a clean, modern feel that flows into the main living spaces. This home is truly move-in ready. Step outside to enjoy RV parking, a spacious backyard with garden space, brand new and newly updated fencing, offering both function and privacy. Newer roof 2024, brand new tankless water heater, new washer and dryer. Elementary school within the neighborhood. Conveniently situated near shopping, dining, schools, and major commuting routes, this home truly checks all the boxes. This is o


NWMLS

This listing is provided courtesy of NWMLS, contributed by Windermere Chambers Bay.



Home Details

Home

Style:14 - Split Entry
Bedrooms:3.00
Bathrooms:2.50
Year Built:1980
Square Footage:1,530
Lot Square Footage:0.28 acres

Schools

School District:Kent
Elementary School:Ridgewood Elem
Junior High:Northwood Jnr High
Senior High:Kentridge High

Financials

Tax Year:2026
Parcel Number:1328340710

Similar Nearby Homes

YouTube Facebook LinedIn