Call us: (360) 446-4646
1-877-446-4647

21118 26th Avenue E in Spanaway

Listing ID:2506962 (Residential Home)
Listing Price:$874,950
Days on Market:2

Details

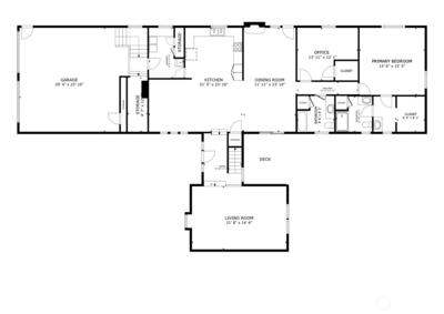
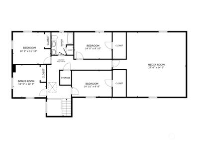
Bed / Bath:4.00 / 2.75
Square Feet:3,738
Lot Size:1.08 acres (47,044 sqft)

Escape to your own private 1-acre sanctuary at the end of a quiet road. This well maintained retreat blends Northwest charm with modern luxury, highlighted by a professionally-designed, sound-proofed cinema. The 17-speaker immersive system features an 83" Sony OLED UHD TV and premium components from Anthem, Emotiva, Klipsch, REL, and Oppo - plus a curated library of 1,000+ movies for a true at-home theater experience! The flexible floor plan of this home adapts to your lifestyle. Enjoy quiet moments in the vaulted living room or main floor office and entertain with ease with the spacious kitchen and fireside wet bar. The generous main level primary suite provides a peaceful retreat with a walk in closet and dual vanity bath. Upstairs, a versatile bonus room is perfect for a guestroom, playroom, gym, or creative studio. Outside, the natural landscape offers privacy and frequent wildlife sightings. Take in the surroundings from the wraparound deck, custom crafted from timber harvested on


NWMLS

This listing is provided courtesy of NWMLS, contributed by John L. Scott, Inc.



Home Details

Home

Style:12 - 2 Story
Bedrooms:4.00
Bathrooms:2.75
Year Built:2004
Square Footage:3,738
Lot Square Footage:1.08 acres

Schools

School District:Bethel

Surroundings

View:Territorial

Financials

Tax Year:2025
Parcel Number:0318116003

Similar Nearby Homes

YouTube Facebook LinedIn