Call us: (360) 446-4646
1-877-446-4647

1322 NE 70th Street in Seattle

Listing ID:2506432 (Residential Home)
Listing Price:$1,128,000
Days on Market:2

Details

Bed / Bath:4.00 / 2.75
Square Feet:1,970
Lot Size:0.07 acres (3,000 sqft)

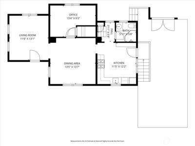
Two Living Spaces. One Exceptional Opportunity. Set on a quiet corner lot in one of Seattle’s most sought-after neighborhoods, this property offers rare flexibility, income potential, and a calm, tucked-away feel in the heart of the city. Nestled between two dead-end streets near the Ravenna Reservoir, you’re walkable to light rail and moments to Green Lake, Whole Foods, Roosevelt High School—urban convenience with unexpected serenity. Built in 1900, the home features two fully separate living spaces, each with its own laundry—ideal for multigenerational living, owner-occupancy, or investment. The upper residence spans two bright stories with soaring ceilings, three bedrooms, a generous dining room, and an ample kitchen. Large, dual pane windows bring in natural light, and a covered deck extends the living space outdoors. The lower residence is a charming one-bed/one-bath with picture windows and views of the private patio and garden—quiet, bright, and completely self-contain


NWMLS

This listing is provided courtesy of NWMLS, contributed by Windermere RE North, Inc.



Home Details

Home

Style:18 - 2 Stories w/Bsmnt
Bedrooms:4.00
Bathrooms:2.75
Year Built:1900
Square Footage:1,970
Lot Square Footage:0.07 acres

Schools

School District:Seattle
Elementary School:Green Lake
Junior High:Eckstein Mid
Senior High:Roosevelt High

Surroundings

View:Territorial

Financials

Tax Year:2025
Parcel Number:6814600200

Similar Nearby Homes

YouTube Facebook LinedIn