Call us: (360) 446-4646
1-877-446-4647

41298 214th Avenue SE in Enumclaw

Listing ID:2506006 (Vacant Land)
Listing Price:$575,000
Days on Market:6

Details


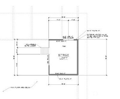
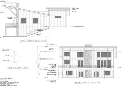
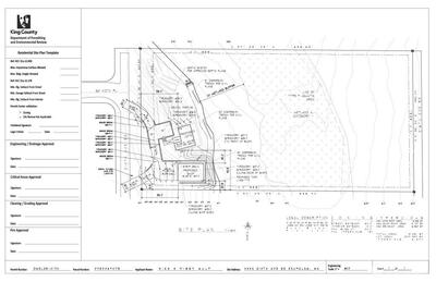
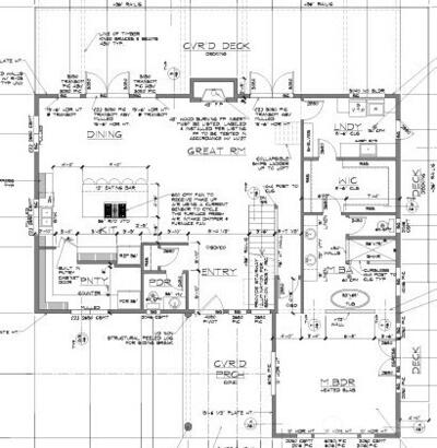
This exceptional 4.82-acre parcel is fully READY TO BUILD, with permits in hand—yes, you can break ground ASAP. The property is perfectly suited for the thoughtfully designed 3,469-square-foot Northwest Contemporary daylight basement rambler, paired with a fully permitted 42' x 60' shop. The home’s open-concept/great room design creates a welcoming space for gatherings as well as daily living, featuring a main-level primary suite for ease and comfort. The kitchen boasts a HUGE pantry and large island, while a dramatic wall of windows fills the interior with natural light and leads out to an elevated, covered deck—offering sweeping views of your acreage, seasonal stream and the serene neighboring pond. The daylight basement expands your options with 2 additional bedrooms, a dedicated office, a large rec room, mechanical room/storage and a convenient full bath. The price includes the King County building permit, an approved septic design, King County approved Critical Areas Designa


NWMLS

This listing is provided courtesy of NWMLS, contributed by KW Mountains to Sound Realty.



Property Details

Schools

Elementary School:Westwood Elem
Junior High:Thunder Mtn Mid
Senior High:Enumclaw Snr High

Surroundings

View:Territorial

Other

Possession:Closing
Style:41 - Res-Over 1 Acre
Sewer:Not Available
YouTube Facebook LinedIn