Call us: (360) 446-4646
1-877-446-4647

2112 SW 103rd Place in Seattle

Listing ID:2504662 (Residential Home)
Listing Price:$869,000
Days on Market:46

Details

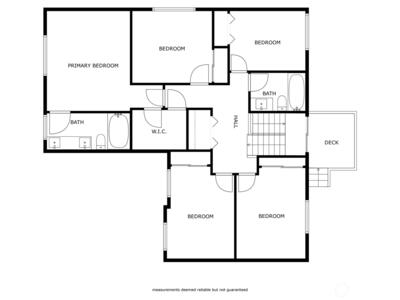
Bed / Bath:5.00 / 2.50
Square Feet:2,090
Lot Size:0.11 acres (4,966 sqft)

5.7% SELLER FINANCING! | Discover Pacific Gardens ~ Perched atop a quiet hillside at the end of a small cul-de-sac by North Shorewood Park, this new construction 2,090sf, 5 bed, 2.5 bath 2-story with mountain & territorial views is built to last! Thoughtfully designed & meticulously crafted with special attention to detail & modern designer finishes throughout. Spacious rooms, tall ceilings & large windows with abundant natural light. Huge living room with corner gas fireplace opens to formal dining & showcase kitchen with granite island & high-end appliances. Grand primary oasis with lavish ensuite & generous walk-in closet. Fully landscaped with entertainment deck. EV ready garage with 220v outlet & long driveway with plenty of parking!


NWMLS

This listing is provided courtesy of NWMLS, contributed by Upgrade Realty.



Home Details

Home

Style:12 - 2 Story
Bedrooms:5.00
Bathrooms:2.50
Year Built:2024
Square Footage:2,090
Lot Square Footage:0.11 acres

Schools

Elementary School:Shorewood Elem
Junior High:Cascade Mid
Senior High:Evergreen High

Surroundings

View:Territorial

Financials

Tax Year:2025
Parcel Number:6600060090

Similar Nearby Homes

YouTube Facebook LinedIn