Call us: (360) 446-4646
1-877-446-4647

14303 SE 284th Place in Kent

Listing ID:2504426 (Residential Home)
Listing Price:$799,950
Days on Market:2

Details

Bed / Bath:5.00 / 2.75
Square Feet:2,330
Lot Size:0.08 acres (3,437 sqft)

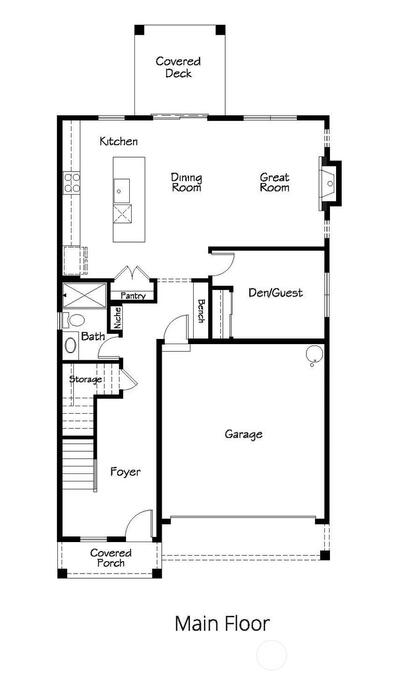
$30,000 buyer bonus with use of our preferred lender! This 2,330 square foot home offers an open concept design that seamlessly blends the kitchen, dining, and living areas, creating a spacious environment perfect for gatherings. The kitchen boasts an island with ample counter space, along with a pantry. Adjacent to the main living area, there’s a cozy den that can function as a home office or playroom. The primary suite is generously sized, featuring a walk-in closet and a private bathroom with a double vanity. Additional bedrooms are located near a full bathroom and have easy access to laundry and storage areas, adding convenience for everyday living. Electric car charging pre-wire included!


NWMLS

This listing is provided courtesy of NWMLS, contributed by John L. Scott, Inc.



Home Details

Home

Style:12 - 2 Story
Bedrooms:5.00
Bathrooms:2.75
Year Built:2026
Square Footage:2,330
Lot Square Footage:0.08 acres

Schools

School District:Kent
Elementary School:Horizon Elem
Junior High:Cedar Heights Jnr Hi
Senior High:Kentlake High

Financials

Tax Year:2026
Parcel Number:0000FVII04

Similar Nearby Homes

YouTube Facebook LinedIn