Call us: (360) 446-4646
1-877-446-4647

7574 129th Place SE #B107 in Newcastle

Listing ID:2504161 (Condominium)
Listing Price:$775,000
Days on Market:8

Details

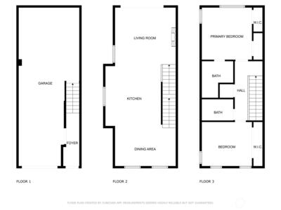
Bed / Bath:2.00 / 1.75

Best location in the Lake Boren Townhomes community, wonderful lake views from the bedroom and the deck, peaceful and private green belt, corner unit allows for tons of natural light, plus attached 2 car tandem garage makes this unit stand out from the rest. Kitchen is ready for your master chef, huge island, stainless steel appliances, and plenty of space to flex your cooking skills. Head upstairs for 2 large bedrooms with 2 bathrooms on opposite ends and convenient laundry in the middle. The community features private beach access, walking trails, BBQ and firepit area. All of this within walking distance to your groceries, restaurants, coffee, parks and library. Immaculately clean and ready to move in!


NWMLS

This listing is provided courtesy of NWMLS, contributed by Eagle Rise Real Estate, LLC.



Property Details

Home

Style:32 - Townhouse
Bedrooms:2.00
Bathrooms:1.75
Year Built:2013

Schools

Elementary School:Newcastle
Junior High:Cougar Mountain Middle
Senior High:Liberty Snr High

Surroundings

View:Lake

Financials

Tax Year:2025
Parcel Number:3988010490
YouTube Facebook LinedIn