Call us: (360) 446-4646
1-877-446-4647

8109 34th Avenue SW #B in Seattle

Listing ID:2503370 (Condominium)
Listing Price:$725,000
Days on Market:53

Details

Bed / Bath:3.00 / 2.50

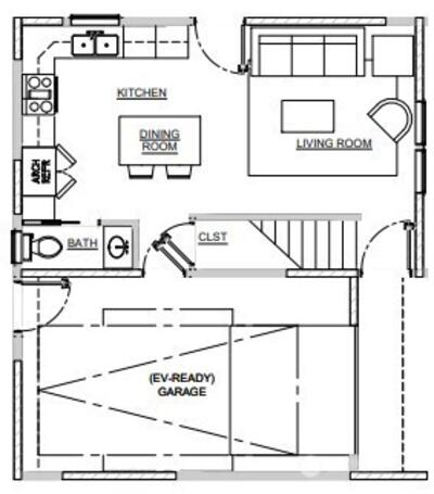
New construction detached home in West Seattle offering privacy, efficient design, and true independence with no shared walls. This thoughtfully designed 1,090 sqft residence features a private garage with EV charging and a fully fenced yard, a hard-to-find combination. The main level showcases a bright, open-concept layout with seamless living, dining, and kitchen spaces designed for both everyday comfort and easy entertaining. Upstairs offers a highly functional three-bedroom layout providing flexibility for guests, a home office, gym, or growing household. With its detached design, private outdoor space, and efficient footprint, this home delivers a unique blend of autonomy and modern livability. Ideally located just minutes from Westwood Village, The Junction, White Center, and Westcrest Park’s popular off-leash dog area, along with neighborhood cafés and local shops that define West Seattle living. Commuters will appreciate easy access to Hwy 509, I-5, I-405, and Sea-Tac Airpor


NWMLS

This listing is provided courtesy of NWMLS, contributed by Pellego, Inc.



Property Details

Home

Style:31 - Condo (2 Levels)
Bedrooms:3.00
Bathrooms:2.50
Year Built:2026

Schools

School District:Seattle
Elementary School:Roxhill
Junior High:Denny Mid
Senior High:Sealth High

Financials

Tax Year:2026
Parcel Number:8150100290

Similar Nearby Propertys

YouTube Facebook LinedIn