Call us: (360) 446-4646
1-877-446-4647

12700 37th Avenue NE in Seattle

Listing ID:2503005 (Residential Home)
Listing Price:$890,000
Days on Market:1

Details

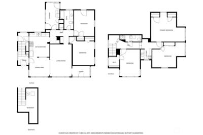
Bed / Bath:5.00 / 1.75
Square Feet:2,280
Lot Size:0.17 acres (7,381 sqft)

Step into this beautifully maintained home that perfectly blends old-world charm and modern comfort. The classic gable roof and thoughtfully preserved architectural details give this property instant appeal. Main level features hardwood floors, 2 bedrooms, full bath, laundry room and large updated kitchen with gas stove and stainless-steel appliances. Upper level with 3 bedrooms, bath, skylights, and convenient kitchenet. Offering a total of five spacious bedrooms, this home provides ample space for a growing family, guests, or even a home office. The abundance of natural light streaming through 30+ double-pane windows creates a bright, inviting atmosphere in every corner while ensuring year-round energy efficiency and comfort. With two kitchens, this property is perfect for multi-generational living and a very accommodating separate guest suite. The layout offers exceptional flexibility —ideal for creating private living quarters or potential rental income opportunities. Addition


NWMLS

This listing is provided courtesy of NWMLS, contributed by RE/MAX Metro Realty, Inc.



Home Details

Home

Style:18 - 2 Stories w/Bsmnt
Bedrooms:5.00
Bathrooms:1.75
Year Built:1012
Square Footage:2,280
Lot Square Footage:0.17 acres

Schools

School District:Seattle

Financials

Tax Year:2026
Parcel Number:1454100225

Similar Nearby Homes

YouTube Facebook LinedIn