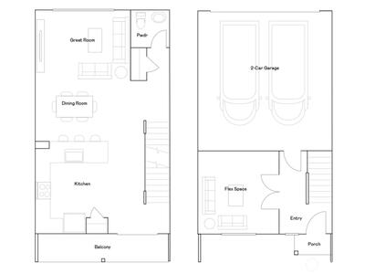
Affordable new construction in King County offering an excellent opportunity for first-time buyers seeking entry-level homeownership. Welcome to the Fern on homesite 32 at Ten Trails Townhomes South, a Lennar community. Live at Ten Trails to enjoy an active lifestyle with trails and parks, plus future conveniences like dining, shopping, and entertainment close to home. This three-story townhome features a convenient first-floor flex room, while upstairs is an open-concept design among the main living areas. The third floor hosts the luxe owner’s suite and a two secondary bedrooms. With Lennar’s signature Everything’s Included®, enjoy new stainless steel appliances, quartz countertops, shaker-style cabinetry and more—all at no extra cost. Buyer’s broker must be registered during the customer’s first interaction with a Lennar Associate to be eligible for compensation.
This listing is provided courtesy of NWMLS, contributed by Lennar Sales Corp.