Call us: (360) 446-4646
1-877-446-4647

32371 Anchor Avenue SE in Black Diamond

Listing ID:2501882 (Residential Home)
Listing Price:$499,950
Days on Market:2

Details

Bed / Bath:3.00 / 2.50
Square Feet:1,684
Lot Size:0.05 acres (2,034 sqft)

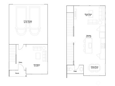
Affordable new construction in King County offering an excellent opportunity for first-time buyers seeking entry-level homeownership. Welcome to the Yarrow on homesite 75 at Ten Trails Mountain View, a Lennar community. Live at Ten Trails to enjoy an active lifestyle with trails and parks, plus future conveniences like dining, shopping, and entertainment close to home. This three-story townhome features a convenient first-floor flex room, while upstairs is an open-concept design among the main living areas. The third floor hosts the luxe owner’s suite and a two secondary bedrooms. Enjoy added privacy with no neighbors directly behind the townhome, offering a more peaceful and secluded setting. With Lennar’s signature Everything’s Included®, enjoy new stainless steel appliances, quartz countertops, shaker-style cabinetry and more—all at no extra cost. Buyer’s broker must be registered during the customer’s first interaction with a Lennar Associate to be eligible for compens


NWMLS

This listing is provided courtesy of NWMLS, contributed by Lennar Sales Corp.



Home Details

Home

Style:32 - Townhouse
Bedrooms:3.00
Bathrooms:2.50
Year Built:2026
Square Footage:1,684
Lot Square Footage:0.05 acres

Schools

Elementary School:Black Diamond Elem
Junior High:Thunder Mtn Mid
Senior High:Enumclaw Snr High

Financials

Tax Year:2026
Parcel Number:0075

Similar Nearby Homes

YouTube Facebook LinedIn