Call us: (360) 446-4646
1-877-446-4647

2360 43rd Ave E #404 in Seattle

Listing ID:2501431 (Condominium)
Listing Price:$649,000
Days on Market:4

Details

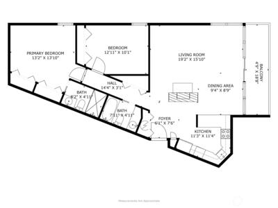
Bed / Bath:2.00 / 1.75

Elevated above Lake Washington, this private top floor Madison Park Condo delivers sweeping views of the lake from nearly every room. Perfectly positioned in one of Seattle’s most sought-after neighborhoods, you’re just moments from Madison Park’s iconic waterfront, boutique shops, and some of the city’s best dining. Inside, a light-filled layout showcases an open-concept kitchen with stainless steel appliances, stone countertops, and generous prep space ideal for everyday living and entertaining. The spacious primary suite is a peaceful retreat with large updated bathroom, while the second bedroom provides flexibility for guests, a home office, or both. A cozy fireplace anchors the living space, with stunning views extending throughout the home. This secure, no rental cap, amenity-rich building features a private swim dock, kayak launch, fitness room, gated parking, and rare private boat launch access bringing true lakeside living to your doorstep. Experience luxury, relaxatio


NWMLS

This listing is provided courtesy of NWMLS, contributed by COMPASS.



Property Details

Home

Style:30 - Condo (1 Level)
Bedrooms:2.00
Bathrooms:1.75
Year Built:1990

Schools

School District:Seattle
Elementary School:Seattle Public Sch
Junior High:Seattle Public Sch
Senior High:Seattle Public Sch

Surroundings

View:Lake, See Remarks

Financials

Tax Year:2025
Parcel Number:4141700410

Similar Nearby Propertys

YouTube Facebook LinedIn