Call us: (360) 446-4646
1-877-446-4647

20068 165th Street E in Bonney Lake

Listing ID:2500213 (Residential Home)
Listing Price:$904,950
Days on Market:4

Details

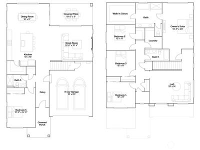
Bed / Bath:5.00 / 3.00
Square Feet:3,134
Lot Size:0.12 acres (5,319 sqft)

Welcome to the Meridian II at Tehaleh Glacier Pointe by Lennar! Live at Tehaleh to enjoy an active lifestyle with miles of trails, parks, and community amenities, plus convenient access to schools, shopping, and dining nearby. This homesite offers added privacy with no neighbors on one side and none directly behind and serene views of the surrounding wooded preserve, creating a peaceful and secluded backyard setting. The home offers a spacious open-concept first floor, seamlessly connecting the kitchen, living, and dining areas. The kitchen features stainless steel appliances, a built-in wall microwave, and quartz countertops, providing both style and functionality. A first-floor bedroom with an adjacent full bathroom adds convenience. Upstairs, three additional bedrooms, including a spacious owner’s suite with a spa-like bathroom and walk-in closet, are centered around a versatile loft, perfect for work, play, or relaxation. With Lennar’s signature Everything’s Included®, youâ€


NWMLS

This listing is provided courtesy of NWMLS, contributed by Lennar Sales Corp.



Home Details

Home

Style:12 - 2 Story
Bedrooms:5.00
Bathrooms:3.00
Year Built:2026
Square Footage:3,134
Lot Square Footage:0.12 acres

Schools

Elementary School:Ptarmigan Ridge Inte
Junior High:Orting Mid
Senior High:Orting High

Financials

Tax Year:2026
Parcel Number:001095

Similar Nearby Homes

YouTube Facebook LinedIn