Call us: (360) 446-4646
1-877-446-4647

10623 NE 155th Place in Bothell

Listing ID:2494052 (Residential Home)
Listing Price:$2,763,000
Days on Market:18

Details

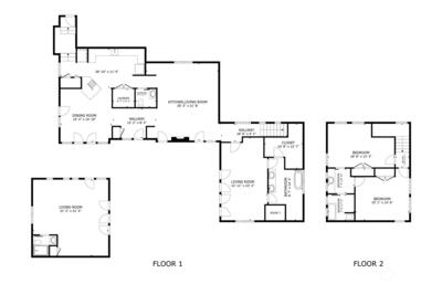
Bed / Bath:3.00 / 3.25
Square Feet:3,810
Lot Size:1.28 acres (55,757 sqft)

The Best Home in Bothell! Set on over an acre in the sought-after Norway Hills community of Tate's Orchard, this elegant contemporary home reflects the timeless design principles of Rhodes Architecture, where natural light, privacy, and connection to the landscape define everyday living. Thoughtfully sited on a spacious lot, the home offers a rare sense of retreat while remaining close to Bothell, Woodinville, and Eastside amenities. Designed to stand the test of time, the architecture creates a seamless indoor-outdoor flow with expansive windows, warm natural materials, and inviting gathering spaces. The gourmet kitchen features granite counters, stainless appliances, and radiant heated concrete floors, opening to living areas with indoor & outdoor fireplaces perfect for year-round entertaining. The separate pergola off the main patio offers even more outdoor entertaining. The sumptuous primary suite showcases extraordinary woodwork, a spa-inspired bath with soaking tub, and an oversi


NWMLS

This listing is provided courtesy of NWMLS, contributed by John L. Scott, Inc.



Home Details

Home

Style:11 - 1 1/2 Story
Bedrooms:3.00
Bathrooms:3.25
Year Built:2001
Square Footage:3,810
Lot Square Footage:1.28 acres

Schools

Elementary School:Moorlands Elem
Junior High:Northshore Middle School
Senior High:Inglemoor Hs

Surroundings

View:Territorial

Financials

Tax Year:2025
Parcel Number:1726059135
YouTube Facebook LinedIn