Call us: (360) 446-4646
1-877-446-4647

4405 E Roosevelt Avenue in Tacoma

Listing ID:2493595 (Residential Home)
Listing Price:$525,000
Days on Market:8

Details

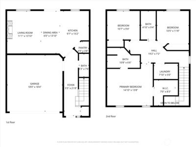
Bed / Bath:3.00 / 2.25
Square Feet:1,449
Lot Size:0.08 acres (3,531 sqft)

Refined comfort meets modern living in this beautifully maintained 2-story home backing to a serene greenbelt with access to 370+ acres of open space, trails & nature. Light-filled interior showcases updated LVP flooring, designer finishes & a seamless open layout perfect for everyday living & entertaining. Inviting kitchen features warm cabinetry, pantry & center island w/eating bar flowing effortlessly into dining & living areas. Spacious living room offers a cozy retreat, while the generous primary suite includes a private ensuite bath & walk-in closet. Secondary bedrooms enjoy peaceful territorial views. Step outside to a fully fenced backyard with patio, garden space & firepit area—ideal for relaxing or hosting. Tankless water heater & 2-car garage w/EV-ready wiring. A rare blend of privacy, style & convenience.


NWMLS

This listing is provided courtesy of NWMLS, contributed by RE/MAX Metro Realty, Inc.



Home Details

Home

Style:12 - 2 Story
Bedrooms:3.00
Bathrooms:2.25
Year Built:2014
Square Footage:1,449
Lot Square Footage:0.08 acres

Schools

School District:Tacoma
Elementary School:Lister
Junior High:First Creek Mid
Senior High:Lincoln High

Financials

Tax Year:2025
Parcel Number:5004232220

Similar Nearby Homes

YouTube Facebook LinedIn