Call us: (360) 446-4646
1-877-446-4647

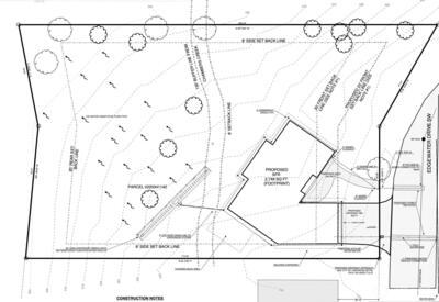
0 Edgewater Drive SW in Lakewood

Listing ID:2490775 (Vacant Land)
Listing Price:$210,000
Days on Market:75

Details


Seller financing available, offering a rare opportunity for builders or buyers looking for flexibility while completing final plans and permits. Possible terms could include 15% down, ~7% interest, and a 3–5 year balloon, helping reduce upfront capital while moving the project forward. This .48± acre vacant lot is tucked away on a quiet, dead-end street offering a private, park-like setting with potential territorial views. A major advantage: previous building plans were already approximately 90–95% through the approval process, saving substantial time and soft costs. Many key steps had previously been completed, including an approved DOE Shoreline permit, geotechnical slope letter, and preliminary sewer and water plans. Existing house plans are included and only needed finalization, giving the next owner a significant head start toward construction. Whether you move forward with the existing design or create your own custom home, this property offers the rare ability to skip much


NWMLS

This listing is provided courtesy of NWMLS, contributed by COMPASS.



Property Details

Schools

School District:Lakewood
Elementary School:Buyer To Verify
Junior High:Buyer To Verify
Senior High:Buyer To Verify

Surroundings

View:Territorial

Other

Possession:Closing
Style:40 - Res-Less thn 1 Ac
Sewer:In Street
YouTube Facebook LinedIn