Call us: (360) 446-4646
1-877-446-4647

10601 192nd St Court E in Graham

Listing ID:2488449 (Residential Home)
Listing Price:$595,000
Days on Market:9

Details

Bed / Bath:3.00 / 2.25
Square Feet:1,984
Lot Size:0.36 acres (15,485 sqft)

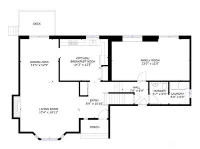
Located at the end of a cul-de-sac in the English Woods community, this move-in ready home offers a functional layout and numerous recent updates. The main level features a living room that flows through the dining area into the kitchen and out to the back deck, creating a connected layout for everyday living and gatherings. A lower-level family room provides additional space for entertainment, recreation, or a home office. Interior updates completed in 2026 include refinished hardwood floors, new carpet, fresh interior paint, refinished kitchen cabinets, quartz countertops, an updated bathroom, and a new sliding glass door leading to the backyard and deck. Additional improvements in recent years include a roof replaced in 2020, solar panels installed in 2021, crawlspace improvements in 2021, LifeProof vinyl plank flooring installed throughout the lower level in 2020, gutters with a leaf filter system installed in 2022, and a gas fireplace insert added in 2024. Outdoor features include


NWMLS

This listing is provided courtesy of NWMLS, contributed by Coldwell Banker Bain.



Home Details

Home

Style:13 - Tri-Level
Bedrooms:3.00
Bathrooms:2.25
Year Built:1992
Square Footage:1,984
Lot Square Footage:0.36 acres

Schools

School District:Bethel
Elementary School:Nelson Elem
Junior High:Frontier Jnr High
Senior High:Graham-Kapowsin High

Financials

Tax Year:2026
Parcel Number:6020510100

Similar Nearby Homes

YouTube Facebook LinedIn