Call us: (360) 446-4646
1-877-446-4647

2815 E Denny Way #B in Seattle

Listing ID:2487048 (Residential Home)
Listing Price:$870,000
Days on Market:24

Details

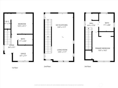
Bed / Bath:2.00 / 1.75
Square Feet:1,134
Lot Size:0.10 acres (4,486 sqft)

Impressive Madison Valley home with designer finishes & modern comfort. Discover this stunning property featuring exceptional craftsmanship, high-end custom details, and thoughtful architecture by local builder Crafted Design Build. Nestled in a quiet, peaceful setting, this modern residence offers the perfect blend of style, comfort, and urban convenience. The open-concept floorplan is ideal for today’s lifestyle, seamlessly connecting the living, dining, and kitchen spaces. The spacious chef’s kitchen boasts ample cabinetry, marble countertops, a gas range, stainless steel appliances, and contemporary finishes—perfect for entertaining or everyday living. Retreat to the generous primary suite with a beautifully appointed bathroom featuring custom designer tile and upscale fixtures. A secondary bedroom plus versatile bonus flex space or home office on the main level, along with a full bath, provides flexibility for guests, remote work, or multi-generational living. Enjoy year-rou


NWMLS

This listing is provided courtesy of NWMLS, contributed by Realogics Sotheby's Int'l Rlty.



Home Details

Home

Style:32 - Townhouse
Bedrooms:2.00
Bathrooms:1.75
Year Built:2024
Square Footage:1,134
Lot Square Footage:0.10 acres

Schools

School District:Seattle
Elementary School:Madrona Elementary
Junior High:Meany Mid
Senior High:Garfield High

Surroundings

View:Territorial

Financials

Tax Year:2025
Parcel Number:8732790020

Similar Nearby Homes

YouTube Facebook LinedIn