Call us: (360) 446-4646
1-877-446-4647

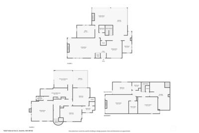
1626 Federal Avenue E in Seattle

Listing ID:2484824 (Residential Home)
Listing Price:$6,500,000
Days on Market:38

Details

Bed / Bath:5.00 / 4.50
Square Feet:5,117
Lot Size:0.57 acres (24,825 sqft)

A once-in-a-generation offering— where French Norman romance and modernism coexist in perfect balance, through a masterful $3M renovation by Chadbourne+Doss Architects and Bellan Construction and featured in the NY Times and Dwell. Set on one of Seattle’s most prestigious avenues, distinguished by a graceful row of historic estates, this N Capitol Hill residence spans over half an acre of lush, secluded grounds. Set back from the street & enveloped by greenery, absolute privacy surrounds every corner. In a brilliant architectural gesture, a glass-wrapped modern addition is seamlessly joined to the original estate, its luminous living spaces unified through a continued palette of mahogany, walnut, marble and blackened steel. The dialogue between old and new feels effortless - not juxtaposed but harmonized - making it approachable for modern life. The chef’s kitchen features a dramatic window lined with walnut & metal floating shelves. Floor-to-ceiling sliding glass walls open to a


NWMLS

This listing is provided courtesy of NWMLS, contributed by Windermere RE/Capitol Hill,Inc.



Home Details

Home

Style:18 - 2 Stories w/Bsmnt
Bedrooms:5.00
Bathrooms:4.50
Year Built:2017
Square Footage:5,117
Lot Square Footage:0.57 acres

Schools

School District:Seattle
Elementary School:Lowell
Junior High:Meany Mid
Senior High:Garfield High

Surroundings

View:Territorial

Financials

Tax Year:2025
Parcel Number:3398800055
YouTube Facebook LinedIn