Call us: (360) 446-4646
1-877-446-4647

121 Stewart Street #2402 in Seattle

Listing ID:2484320 (Condominium)
Listing Price:$675,000
Days on Market:26

Details

Bed / Bath:1.00 / 1.00

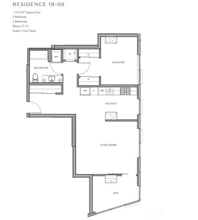
Extremely motivated seller - make an offer! One-of-a-kind one bedroom w/den corner unit, formally the model unit in the building. Unit is loaded with extras including spectacular views of Elliot Bay and long city views down Second Avenue. This unit also has custom wood cabinetry, hardwood floors, full-size W/D, latch keyless entry and floor-to-ceiling windows. Amenities include fitness center, yoga studio, pet run & spa, guest suite, onsite electric carshare and full-floor rooftop indoor/outdoor lounge. Den could be used as a non-conforming 2nd bedroom. Rare need for a car with a Walkscore of 99 (1 block from Pike Place Market, 2 blocks from water's edge. If you need parking, multiple options available at the Thompson Hotel & Helios. Hurry!


NWMLS

This listing is provided courtesy of NWMLS, contributed by Real Broker LLC.



Property Details

Home

Style:30 - Condo (1 Level)
Bedrooms:1.00
Bathrooms:1.00
Year Built:2020

Schools

School District:Seattle

Surroundings

View:Bay, City, Sound, Territorial

Financials

Tax Year:2025
Parcel Number:2329711640

Similar Nearby Propertys

YouTube Facebook LinedIn