Call us: (360) 446-4646
1-877-446-4647

935 7th Avenue NE #17.3 in Issaquah

Listing ID:2469977 (Condominium)
Listing Price:$1,238,000
Days on Market:75

Details

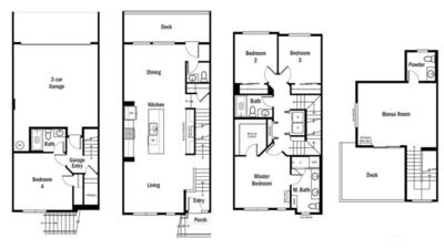
Bed / Bath:4.00 / 3.75

Welcome to this exceptional townhome in the sought-after Westridge Community, nestled in the heart of Issaquah Highlands! Enjoy breathtaking sunsets, panoramic views of Lake Sammamish, and the surrounding mountains from this spacious and light-filled 4-bedroom, 5-bath home. The open-concept main level features a modern kitchen with SS appliances & Quartz countertop , seamlessly flowing into the bright living and dining. The top-floor bonus room opens to a private rooftop sundeck, offering a serene escape with stunning vistas. Immaculately maintained. Large side by side 2-car garage with abundant storage space. Quick access to shopping, dining, parks and I-90. No rental cap.


NWMLS

This listing is provided courtesy of NWMLS, contributed by Sea to Sky Realty.



Property Details

Home

Style:32 - Townhouse
Bedrooms:4.00
Bathrooms:3.75
Year Built:2019

Schools

Elementary School:Buyer To Verify
Junior High:Buyer To Verify
Senior High:Buyer To Verify

Financials

Tax Year:2025
Parcel Number:8664890290

Similar Nearby Propertys

YouTube Facebook LinedIn