Call us: (360) 446-4646
1-877-446-4647

7320 11th Avenue NE in Seattle

Listing ID:2466374 (Condominium)
Listing Price:$689,950
Days on Market:47

Details

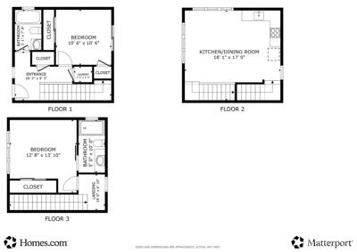
Bed / Bath:2.00 / 1.75

Modern. Connected. Elevated. Discover refined living in this brand-new 1,002 sq ft home in Seattle’s desirable Roosevelt community. Designed with precision and simplicity, this modern residence features a beautiful primary suite with vaulted ceilings and an elegant ensuite bath, and a 2nd bedroom on the first floor with its own private tiled bath. You will appreciate the chef-inspired kitchen with quartz surfaces and premium stainless appliances. Air conditioning, energy-efficient systems, and cable-ready connectivity — crafted for a seamless, tech-forward lifestyle. Enjoy your private, fenced yard, and parking off the alley with EV Charging potential. Luxury meets innovation — welcome home.


NWMLS

This listing is provided courtesy of NWMLS, contributed by RE/MAX Northwest Realtors.



Property Details

Home

Style:32 - Townhouse
Bedrooms:2.00
Bathrooms:1.75
Year Built:2025

Schools

School District:Seattle

Financials

Tax Year:2025
Parcel Number:671670080009

Similar Nearby Propertys

YouTube Facebook LinedIn