Call us: (360) 446-4646
1-877-446-4647

35 Broadway #1 in Tacoma

Listing ID:2465288 (Condominium)
Listing Price:$1,100,000
Days on Market:32

Details

Bed / Bath:2.00 / 2.75
Lot Size:0.07 acre (3,000 sqft)

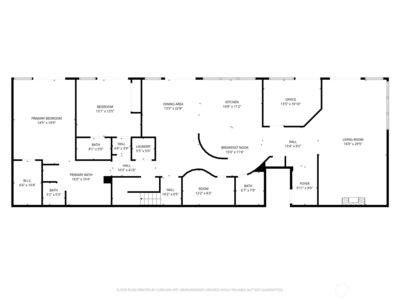
Picture a palace in the sky, where water, bay, and mountain views unfold the moment the elevator opens to your private floor. Grand vistas set the stage for this thoughtfully designed one-level condo with living spaces that feel expansive & refined.The view-filled kitchen anchors the home, complemented by 2 owner suites, each with breathtaking sights, 3 beautifully appointed baths, dedicated office with built in Murphy Bed, and a full-length balcony that invites you to soak it all in. Four secure parking spaces, gated entry, and a secure building add rare & valuable peace of mind. Set in a charming brick building, this residence blends timeless character with an unbeatable urban location. Step outside and hop on the light rail for effortless access to downtown and beyond: exceptional dining, world-class shopping, art galleries, and museums all within easy reach. City living at its finest!


NWMLS

This listing is provided courtesy of NWMLS, contributed by Windermere RE West Campus Inc.



Property Details

Home

Style:30 - Condo (1 Level)
Bedrooms:2.00
Bathrooms:2.75
Year Built:1985

Schools

School District:Tacoma

Surroundings

View:Bay, City, Sound, Territorial

Financials

Tax Year:2025
Parcel Number:9044700010

Similar Nearby Propertys

YouTube Facebook LinedIn