Call us: (360) 446-4646
1-877-446-4647

800 Columbia Street #2201 in Seattle

Listing ID:2464906 (Condominium)
Listing Price:$1,050,000
Days on Market:97

Details

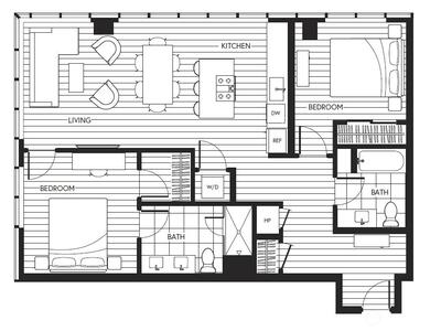
Bed / Bath:2.00 / 1.75

Comes with one parking stall! Awarded "2025 Development of the Year"! Welcome home to modern high-rise living in Seattle’s historic First Hill neighborhood surrounded by tree-lined streets, pocket parks, & top-rated dining, at the intersection of Downtown & Capitol Hill. Discover soaring ceilings, glass curtain wall construction, expansive views, & sophisticated design features in these elegant homes. Elevated amenities include a fitness center, co-working lounge, & 24/7 concierge. The rooftop club level boasts 360 degree views with a wine bar, media room, dining lounge, & 2 plazas overlooking Mt. Rainier, the skyline, & Lake Union, perfect for entertaining. Buyer must register broker on first visit.


NWMLS

This listing is provided courtesy of NWMLS, contributed by Realogics Sotheby's Int'l Rlty.



Property Details

Home

Style:30 - Condo (1 Level)
Bedrooms:2.00
Bathrooms:1.75
Year Built:2023

Schools

School District:Seattle
Elementary School:Buyer To Verify
Junior High:Buyer To Verify
Senior High:Buyer To Verify

Surroundings

View:City

Financials

Tax Year:2025
Parcel Number:2871201720

Similar Nearby Propertys

YouTube Facebook LinedIn