Call us: (360) 446-4646
1-877-446-4647

9223 B Densmore Avenue N in Seattle

Listing ID:2457174 (Condominium)
Listing Price:$499,900
Days on Market:133

Details

Bed / Bath:2.00 / 1.00
Lot Size:0.02 acre (871 sqft)

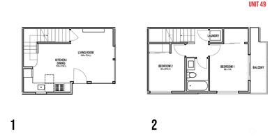
AMAZING PRICE!!! Set within the thoughtfully designed Clover community in Licton Springs, this two-bedroom townhome blends efficient modern living with spaces that feel intentional, light-filled, and easy to live in. The open entry-level layout connects kitchen, dining, and living areas in a way that maximizes flow without wasted square footage—perfect for relaxed evenings, hosting friends, or simply enjoying a well-designed home that works hard for its size. The chef’s kitchen anchors the space with premium appliances, clean-lined cabinetry, and durable finishes chosen for everyday use. Upstairs, two comfortable bedrooms are thoughtfully separated, including a primary with direct access to a private balcony—an ideal spot for fresh air, morning coffee, or winding down at the end of the day. A dedicated laundry area and a well-appointed full bath complete the upper level. Outside, enjoy a covered patio and generous yard space—rare perks at this scale—extending your living area


NWMLS

This listing is provided courtesy of NWMLS, contributed by Windermere RE/Capitol Hill,Inc.



Property Details

Home

Style:32 - Townhouse
Bedrooms:2.00
Bathrooms:1.00
Year Built:2026

Schools

School District:Seattle
Elementary School:Viewlands
Junior High:Robert Eagle Staff Middle School
Senior High:Ingraham High

Surroundings

View:Territorial

Financials

Tax Year:2025
Parcel Number:6178000120

Similar Nearby Propertys

YouTube Facebook LinedIn