Call us: (360) 446-4646
1-877-446-4647

6356 47th Avenue S in Seattle

Listing ID:2453136 (Condominium)
Listing Price:$899,000
Days on Market:105

Details

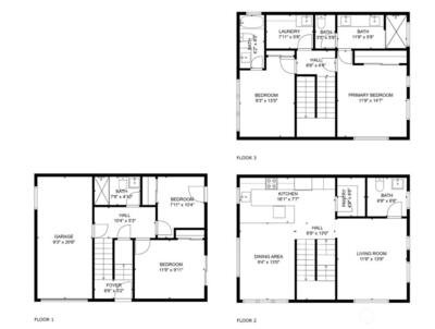
Bed / Bath:4.00 / 3.25
Lot Size:0.04 acre (1,837 sqft)

Covered garage, private driveway, and a fenced yard set this modern home apart—offering space, privacy, and everyday convenience rarely found in the city. Located in South Seattle’s vibrant Brighton neighborhood near Seward Park, Lake Washington, and lively Columbia City, this residence strikes the perfect balance between neighborhood calm and urban access. Inside, enjoy bright open-concept living with sleek designer finishes and four spacious bedrooms filled with natural light. Expansive windows capture sweeping territorial views to the north, south, and west, creating an airy, inviting atmosphere throughout. Outside, the private fenced yard and lush landscaping provide a peaceful retreat for entertaining, pets, or quiet evenings at home. With a covered garage, private driveway, and ample street parking, this home delivers exceptional functionality on a quiet, walkable street surrounded by welcoming neighbors.


NWMLS

This listing is provided courtesy of NWMLS, contributed by Real Broker LLC.



Property Details

Home

Style:34 - Condo (3 Levels)
Bedrooms:4.00
Bathrooms:3.25
Year Built:2025
Total Covered Parking:1

Schools

School District:Seattle
Elementary School:Graham Hill
Junior High:Aki Kurose
Senior High:Rainier Beach High

Surroundings

View:Territorial

Financials

Tax Year:2025
Parcel Number:6356taxid

Similar Nearby Propertys

YouTube Facebook LinedIn