Call us: (360) 446-4646
1-877-446-4647

11744 35th Avenue NE in Seattle

Listing ID:2451071 (Vacant Land)
Listing Price:$474,000
Days on Market:4

Details


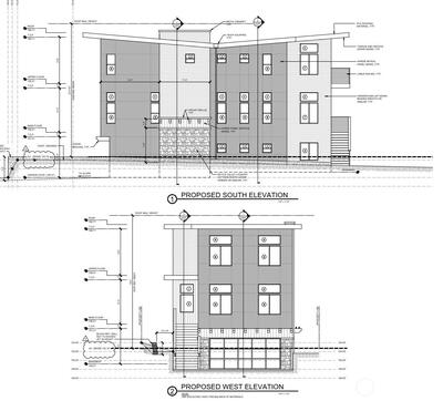
Great development and investment opportunity. Or build your own house. The property is ready for a new 3,065 square footage modern house construction with an issued construction permit . The lot is in a wonderful location with close proximity to Magnuson Park, Matthews Beach off Lake Washington, Jackson Golf Course, nearby restaurants & shopping & easy access to the freeway. Permit and construction plans available upon request.


NWMLS

This listing is provided courtesy of NWMLS, contributed by RSVP Real Estate.



Property Details

Schools

School District:Seattle
Elementary School:Buyer To Verify
Junior High:Buyer To Verify
Senior High:Buyer To Verify

Surroundings

View:Territorial

Other

Possession:Closing
Style:40 - Res-Less thn 1 Ac
Sewer:On Property

Similar Nearby Propertys

YouTube Facebook LinedIn