Call us: (360) 446-4646
1-877-446-4647

17 W Mercer Street #300 in Seattle

Listing ID:2447625 (Condominium)
Listing Price:$688,000
Days on Market:4

Details

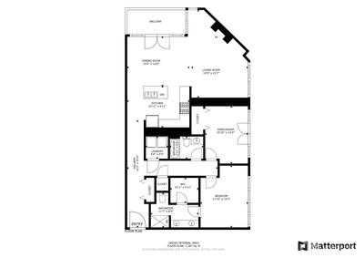
Bed / Bath:2.00 / 1.75

Flooded with natural light, this top floor corner unit at Tribeca is the ultimate in-city retreat. Step inside to soaring ceilings, floor-to-ceiling windows, exceptional floorplan. Prepare meals in a chef's kitchen. Relax and entertain in wide-open living and dining spaces with doors to private BBQ deck. The bedroom wing features 2/2 including primary suite w/ walk-in closet, black-out shades, private bath. You'll love the Central AC, gas fireplace, electronic blinds, bamboo hardwoods, WFH office nook, big laundry room, 2 secure parking spots. Enjoy Space Needle + city views from roof deck. Great Q.A. location: walk to local restaurants, cafes, shops, Kraken games, the waterfront, more. Easy access to SLU + downtown Seattle. No rental cap.


NWMLS

This listing is provided courtesy of NWMLS, contributed by Windermere RE Greenwood.



Property Details

Home

Style:30 - Condo (1 Level)
Bedrooms:2.00
Bathrooms:1.75
Year Built:2002
Total Covered Parking:2

Schools

School District:Seattle
Elementary School:John Hay Elementary
Junior High:Mc Clure Mid
Senior High:Lincoln High

Surroundings

View:City, Territorial

Financials

Tax Year:2025
Parcel Number:8681460420

Similar Nearby Propertys

YouTube Facebook LinedIn