Call us: (360) 446-4646
1-877-446-4647

19288 NE 69th Circle #104 in Redmond

Listing ID:2444454 (Condominium)
Listing Price:$899,999
Days on Market:8

Details

Bed / Bath:2.00 / 2.50

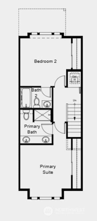
New Construction-December Completion! Built by America's Most Trusted Homebuilder. Welcome to The E1B at 19288 NE 69th Circle Unit 104 in Woodside is a 2-bedroom townhome with a 1-car garage and thoughtful layout across three levels. The lower level features a den and powder room. Upstairs, a spacious great room opens to a large, covered deck. The top floor includes a primary suite, second bedroom, guest bath, and laundry. With three parks, trails to Evans Creek, and future light rail nearby, everything is within reach. Photos are for Representative Purposes Only. Builder broker registration policy requires, if represented, your broker register you with Community Site agent prior to OR with you, on your 1st visit. MLS#2444454


NWMLS

This listing is provided courtesy of NWMLS, contributed by Cascadian King Company LLC.



Property Details

Home

Style:32 - Townhouse
Bedrooms:2.00
Bathrooms:2.50
Year Built:2025
Total Covered Parking:1

Schools

Elementary School:Dickinson Elem
Junior High:Evergreen Middle
Senior High:Eastlake High

Financials

Tax Year:2024
Parcel Number:WD104/17.4

Similar Nearby Propertys

YouTube Facebook LinedIn