Call us: (360) 446-4646
1-877-446-4647

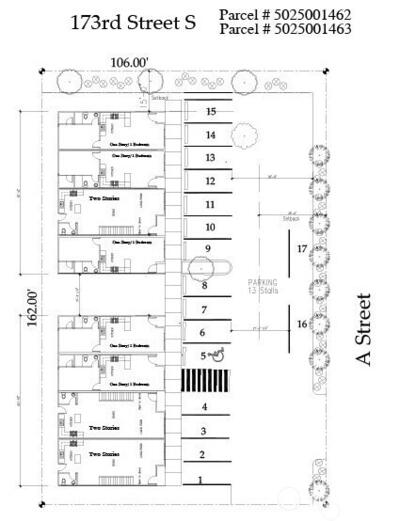
17302 A Street S in Spanaway

Listing ID:2437537 (Vacant Land)
Listing Price:$364,950
Days on Market:40

Details


Two separate parcels in the heart of Spanaway offer a canvas for your vision — whether that’s building multiple homes, creating a mixed-use project, or designing a dream residence with room to grow (buyer to verify). UCOR zoning gives you the flexibility investors and builders look for, with nearby access to utilities, schools, shopping, and JBLM adding to the appeal. Opportunities like this don’t come often — bring your plans and imagination to make the most of this prime location and watch your investment grow.


NWMLS

This listing is provided courtesy of NWMLS, contributed by eXp Realty.



Property Details

Schools

School District:Bethel
Elementary School:Spanaway Elem
Junior High:Spanaway Jnr High
Senior High:Spanaway Lake High

Surroundings

View:Territorial

Other

Possession:Closing
Style:40 - Res-Less thn 1 Ac
Sewer:Available, In Street

Similar Nearby Propertys

YouTube Facebook LinedIn