Call us: (360) 446-4646
1-877-446-4647

4708 S Morgan Street in Seattle

Listing ID:2435729 (Condominium)
Listing Price:$739,000
Days on Market:19

Details

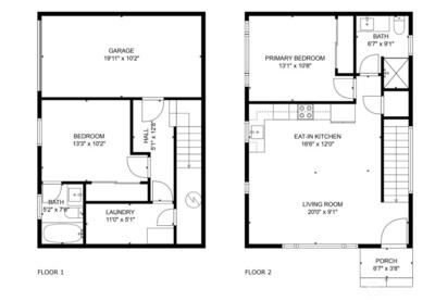
Bed / Bath:2.00 / 1.75
Lot Size:0.02 acre (1,000 sqft)

Stylish, modern luxury awaits in this stunning brand-new construction home, minutes from Seward Park, this new home combines modern style with an ideal location—3 mins to Hillman City, 7 to Columbia City, and 20 to downtown Seattle. Feat. 2 bedrooms and a spacious living room, enjoy territorial southern views from inside. The oversized private fenced yard with fresh grass and outdoor dining areas creates the perfect urban retreat. Includes a large garage plus an additional bonus private uncovered parking space, along with a secluded driveway plus street parking. Thoughtful landscaping throughout, stylish interior finishes, and a peaceful, walkable neighborhood make this home truly special—not your cookie-cutter new construction property!


NWMLS

This listing is provided courtesy of NWMLS, contributed by Real Broker LLC.



Property Details

Home

Style:31 - Condo (2 Levels)
Bedrooms:2.00
Bathrooms:1.75
Year Built:2025
Total Covered Parking:1

Schools

School District:Seattle
Elementary School:Graham Hill
Junior High:Aki Kurose
Senior High:Rainier Beach High

Surroundings

View:Territorial

Financials

Tax Year:2025
Parcel Number:4708taxid

Similar Nearby Propertys

YouTube Facebook LinedIn